ДИЗАЙН-ПРОЕКТ С КОЛЛАЖАМИ
3 500 руб./кв.м
Дизайн-проект с визуализациями — комплект документации, отображающей концепцию художественного оформления интерьера помещения, включающий в себя:
1. Планировочное решение (предлагается несколько вариантов перепланировки для вашего пространства с указанием вариантов
расстановки мебели)
2. Эскизный
проект (Мудборд — визуальное представление дизайн-проекта по средствам коллажа, для отображения стилистики и настроения будущего интерьера, разрабатывается перед визуализацией)
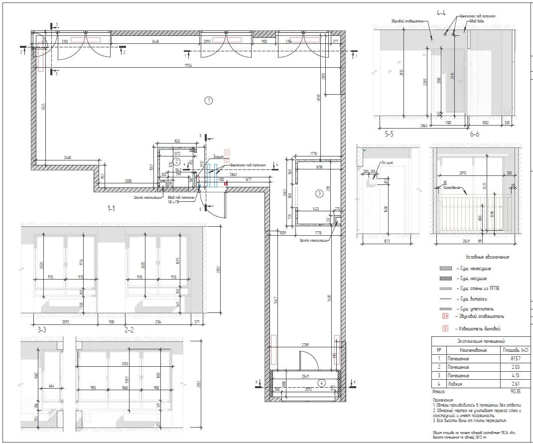
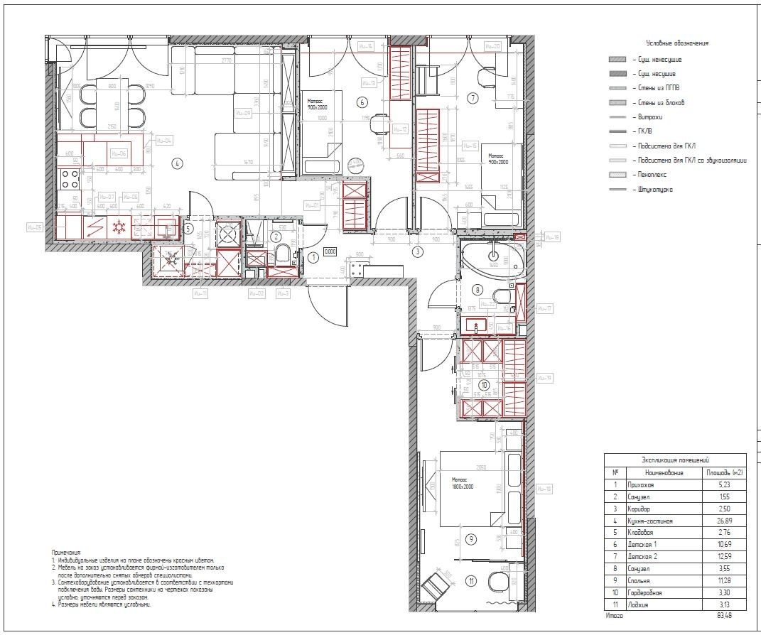
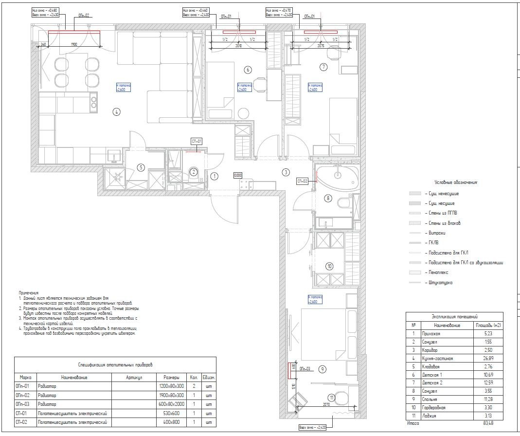
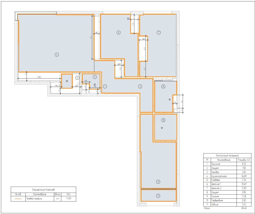
3. Рабочий проект (альбом чертежей для строителей)

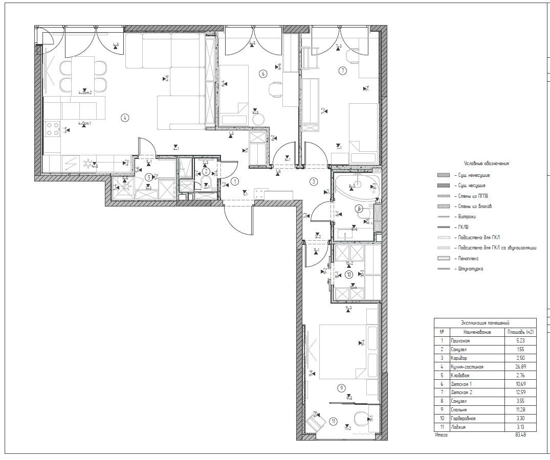
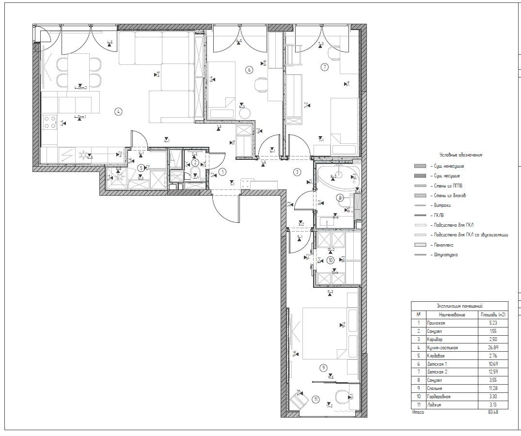
СОСТАВ ПРОЕКТА
- Обмерный план
- План демонтажа
- План монтажа
- Объемный план
- План перепланировки с расстановкой мебели
- План размещения сантехнических приборов
- План расстановки розеток и выключателей
- План расстановки осветительных приборов
- План тёплых полов
- Схема групп освещения
- План потолка с указанием высот
- План отделки потолка
- План размещения кондиционеров
- План раскладки напольного покрытия
- Схема укладки плинтусов
- План заполнения дверных проёмов
- Схема подготовки стен под отделку
- План с указанием развёрток стен
- Развёртки стен по помещениям
✓ Мудборд (визуальное представление дизайн-проекта посредством коллажа, для отображения стилистики и настроения будущего интерьера, разрабатывается перед визуализацией)
БОНУС: Спецификация отделочных материалов
ПРИМЕР РАБОЧЕГО ПРОЕКТА
ЗАКАЗАТЬ ПРОЕКТ
Заполните контактную форму на сайте и я отвечу вам в ближайшее время
























































